Getränkehalle-Büro-Wohn-75438-Knittlingen

Die Stadt Knittlingen besteht aus den drei Stadtteilen Stadt Knittlingen, Freudenstein-Hohenklingen und Kleinvillars. Die Stadtteile sind räumlich identisch mit den früheren Gemeinden mit entsprechenden Namen, ihre offizielle Benennung erfolgt in der Form „Knittlingen, …“. Die Stadtteile bilden zugleich Wohnbezirke im Sinne der baden-württembergischen Gemeindeordnung. Im Stadtteil Freudenstein-Hohenklingen ist eine Ortschaft im Sinne der baden-württembergischen Gemeindeordnung mit eigenem Ortschaftsrat und Ortsvorsteher als dessen Vorsitzender eingerichtet.[2]

Zum Stadtteil Freudenstein-Hohenklingen gehören die Dörfer Freudenstein und Hohenklingen, die beide zusammengewachsen sind. Zum Stadtteil Kleinvillars gehört das Dorf Kleinvillars. Zum Stadtteil Knittlingen gehören die Stadt Knittlingen, das Gehöft Büschlehof und die Häuser Pflegmühle und Störrmühle. Im Stadtteil Knittlingen liegen die Wüstungen Weisach, Oberhofen und Altenhofen.[3]

Wir Werkhallenbau errichten hier einen Getränkte halle mit Büro und Wohn:

Lagerhalle :
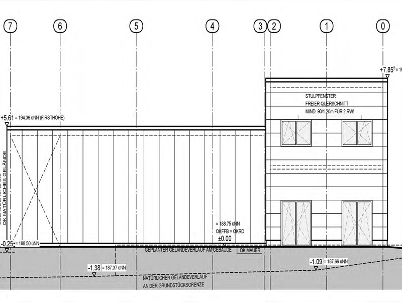
Länge : 20 m
Breite : 15 m
Traufe // First : 4,3 // 5,5 m über Hallenboden
Dachform: Pultdach
Dachneigung : 5 °

Ausstellung mit OG:
Länge : 8 m
Breite : 15 m
Traufe // First : 6,4 // 7,5 m über Hallenboden
Dachform: Pultdach
Dachneigung : 5 °

Deckenelemente:

Schlaffarmierte bzw. z. Teil vorgespannte Stahlbetonhohlplatten nach DIN 1045-1, Betongüte C50/60, lt. Planunterlagen, d=20 cm, Nutzlast 1,5 kN/qm +1,25 kN/qm für Trennwandaufnahme, F 30-Ausführung, Plattenbreite bis 225 cm; incl. eingebauter Grundbewehrung; Untersicht der Deckenplatten schalungsglatt und tapezierfähig. Auflegen mit einem bis zu 45 Tonnen-Autokran Liefern frei Baustelle.
 
Thermowand,
 
Kerndicke mind. 120 mm aus doppelschaligem, bandverzinktem und kunststoff¬beschichtetem Profilstahlblechen im Standardfarbton nach Wahl des AG.
Einschließlich sämtlicher erforderlichen Formteile wie Tor-, Fenster- und Eck¬einfassprofile sowie Tropfbleche und aller erforderlichen Wandriegel aus Stahlprofilen.
Kernmaterial mind. mit Brandklassifizierung B2.
Korrosionsschutzklasse III, Zinkauflage mind. 275 g/m2.

Es werden nur Fabrikate mit allgemeiner bauaufsichtlichter Zulassung vom Institut für Bautechnik in Berlin und mit Ü-Zeichen verwendet.
u-Wert :0,18 W/qm°K
 
Werkhallenbau Dacheindeckung:
 
Thermodach 120 mm, u-Wert: 0,19

Werkhallenbau-Thermodach, Kerndicke 120 mm, aus doppelschaligem, bandverzinktem und kunststoff­beschichtetem Profilstahlblechen im Standardfarbton nach Wahl des AG.

Hallenbau Wandverkleidung Büro bestehend aus:
Porenbeton : 30 cm

Hallenbau mit Außenwand aus liegend verlegten Porenbeton-Wandplatten mit gefasten Längskanten
GB 4.4-0,55, vor der Stahlkonstruktion verlegt. Einschließlich aller Schrägschnitte, Tor-, Konsol- und Riegelaussparungen sowie der Eck- und Fensterendstücke, Passplatten.

Türen, Verglasung und Tore bestehend aus:
Kunststofffenster in weiß, mit umlaufender Lippendichtung und verdeckt eingebauter Beschläge. Bedienungsgriffe aus eloxiertem Aluminium. Flügel mit Dreh- Kippbeschlag, incl. äußerer Abdichtung und äußerer Alufensterbank in Fensterfarbe.
Aufgeteilt in 1m Felder. U-Wert Verglasung 1,1
Aufteilung wie folgt:
F = Festverglast DK = Drehkippflügel

3 Stck. Abmessung 1,00 x 1,25 DK
10 Stck. Abmessung 2,00 x 1,25 DK/DK
1 Stck. Abmessung 1,00 x 2,50 F
4 Stck. Abmessung 1,00 x 2,17 Balkontüren

Mehrzwecktür

45 mm dick, Blechdicke 0,9 mm mit Mineralwoll-Dämmung und Stahlverstärkung, 2-seitig gefälzt, verzinkt und grundiert-pulverbeschichtet in Grauweiß (in Anlehnung an RAL 9002)
Einsteckschloß mit Wechsel mit Buntbart-Schloßeinsatz und Buntbart Schlüssel (vorgerichtet für Profilzylinder)
Standard Rundgriff-Drückergarnitur aus schwarzen Kunststoff mit Stahlkern (Drücker festdrehbar gelagert), verwendbar für Profilzylinder oder Buntbart-Schlüssel.
1 Konstruktionsband gemäß DIN 18272 mit Federbandhülse (nicht selbstschließend)
3 Stck. 1,0 x 2,0 m

Eingangselemente

Aluminium Eingangsanlage, 1-flügelige Ausführung mit Sicherheitsisolierverglasung, einschl. Standardbeschlägen, Profilzylinder.
Aus thermisch getrennten Profilen, Farbe Weiß.
1 Stck. Abmessung 1,0 x 2,175

Deckengliedertor bestehend aus einer Bodensektion mit geschlossener Füllung aus naturfarbenen Aluminium, in Sandwichbauweise mit PU-Hartschaumkern.
Restliche Sektionen großflächig verglast, mit Acryldoppelglasscheiben, in Kunst¬stoffdichtungen gehalten und abgedichtet, mit Laufschienen, Federaggregat und anstell¬baren Rollen zur bestmöglichen Abdichtung zwischen Tor und Rahmen. Einschl. Haspelkette bei Toren ab 3,40 m

2 Stck. Abmessung : 4,00 x 4,05

Bauantragsunterlagen

Zusammenstellung der eingabereifen Bauvorlagemappen mit den je nach Vorgabe der Behörde/Landesbauordnung erforderlichen Beschreibungen, Berechnungen und Plänen, d.h.:
• Bauantragsformulare, Baubeschreibung, statistischer Erhebungsbogen
• Berechnung des umbauten Raumes,
• Nutzflächenberechnung, ggfls. Wohnflächenberechnung (falls vorhanden)
• Berechnung der Grundflächenzahl GRZ, Berechnung Geschossflächenzahl
• Stellplatznachweis (alls erforderlich)
• Grundrisse, Schnitt, Ansichten im Maßstab 1 : 100,
• Freiflächenplan,
• Darstellung der Entwässerung (SW+RW) zur Einleitung in die öffentliche Kanalisation
• Darstellung der Baumaßnahme im Lageplan 1:1000 zur weiteren Bearbeitung durch den
bauseitigen Vermessungsingenieur

Komplett mit Montage und Erstellen der Konstruktionspläne.

Diese Projekt ist auch für die KFZ-Werkstatt oder Gewerbebau in Baden-Württemberg , Rheinland-Pfalz, Bayern, Nordrhein-Westfalen und Hessen. Weitere Bundesländer auf Anfrage.

Zurück